行业资讯
地下车库设计规范
地库基本概念
地下车库——室内地坪面地于室外地坪面高度超过该层车库净高一半的汽车库。(利用地下层空间做车库,以坡道与地面相通)

1.全地下车库
停车间室内地坪面低于室外地坪面高度超过该层车库净高一半的汽车库。
2.半地下车库
低于室外地坪面高度超过该层车库净高1/3的汽车库,不超过1/2的汽车库。
全地下车库与半地下车库对比表

3.车库形式选择要点
根据地形条件及甲方任务书要求进行选择适当形式。
例如:山地多选择半地下车库,相对平坦地形多选择全地下车库。
①退界
地库退界不小于地库底板到顶板高度的0.7倍,国标不小于5米,沪标不小于3米。

满足外圈综合管线要求

4.总图布置车库要点
1)建筑间距



2)严禁建造地库建筑范围
汽车库不应与托儿所幼儿园养老院组合建造。当病房楼与汽车库有完全防火分隔时,病房楼的地下可设置汽车库。

即使是幼儿园养老院的场地内(非建筑正投影下)也不允许设地库
车位基本设计要求
1.车位规范要求
车位尺寸


垂直式停车

平行式停车

机械停车




垂直式后退停车

平行式前进停车

2.转弯半径


3.车库埋深确定
1)非人防普通车库
非人防普通车库净空高度不应小于2.2m.

梁板式
2)非人防机械车库
机械停车位要求净高3.6m

梁板
3)非人防普通车库
非人防普通车库净空高度不应小于2.2m.

无梁楼盖
4)人防车库
要求净高2.4m,结构板厚200mm以上

梁板
4.车库覆土厚度
地下车库顶板的覆土厚度一般确定方法:
①当地规范绿化率计算要求覆土厚度;
②给排水及其他工种走线要求;
③景观绿化设计要求。
车库出入口基本设计要求
1、出入口数量确定
大中型汽车库的库址,车辆出入口不应少于2个;特大型汽车库库址,车辆出入口不应少于3个,并应设置人流专用出入口。
国标
1.不少于两个,但符合下列条件可设一个:
Ⅳ类汽车库(<50)或停车少于100辆的地下车库或坡道为双车道的Ⅲ类地上车库(51-150)
2.Ⅰ、Ⅱ类汽车库和停车大于100的地下车库,如果采用错层或斜楼板,坡道是双车道,那没首层或负一层到室外的汽车疏散口不少于2个,其它楼层疏散坡道可以设1个。
3.特大型车库汽车(>500)出入口数量不应少于3个。
沪标《建筑工程交通设计及停车库场设置标准》
25辆一下,1个单车道或1个双车道
25-99辆,2个单车道或1个双车道
100-199辆,不少于2个单车道
200-699辆 2个双车道(双进双出)
700辆及以上,3个双车道
对于设三个车道的要求比国标要宽松
2、出入口宽度确定
出入口最小宽度:单车5.0m,双车7.0m
3、出入口位置基本要求
1)汽车库出入口净距
机动车停车库地上出入口之间的净距不应小于15m
2)基地内配建的机动车停车库(场)不应将其出入口直接设置在城市道路上,其出入口应设在基地内部道路上,并符合内部交通的需要。
3)机动车停车库的出入口的坡道终点面向城市道路时,其与城市道路红线的距离不应小于7.5m,平行城市道路或与城市道路斜交角度小于75度时应后退基地的出入口不小于5.0m

4)汽车库出入口通视要求
汽车库库址的车辆出入口,距离城市道路的规划红线不应小于7.5m,并在距出入口边线内2m处作视点的120°范围内至边线外7.5m以上不应有遮挡视线障碍物。

5)机动车库地下出入口间距要求不应小于10m

上海规定:地下车库出入口与住宅间距不小于8m

车库坡道基本设计要求
沪标《建筑工程交通设计及停车库场设置标准》
直线坡道的坡度最大可以做到 16%
国标《汽车库建筑设计规范》
A 小型车的直线最大坡度 15%
B 中型车的直线最大坡度 12%
C 大型车的直线最大坡度 10%
坡度超多10%时,坡道上下端应设1/2坡度的缓坡 (直线缓坡 3.6米长,曲线缓坡 2.4米长)

汽车库内当通车道纵向坡度大于10%时,坡道上、下端均应设缓坡。其直线缓坡段的水平长度不应小于3.6m,缓坡坡度应为坡道坡度的1/2。曲线缓坡段的水平长度不应小于2.4m,曲线的半径不应小于20m,缓坡段的中点为坡道原起点或止点。

柱网布置基本要求
1、常见柱网形式
柱网布置
柱网:柱网按7800~8400x(2a+b)/2布置。以横向停3辆车为例,垂直行车道方向柱(2a+b)/2,其中:a为停车位深度,b为行车道宽度。

8400x8400

8100x8100

极限尺寸

2、柱网选择要点
1)单建式地库,停放小型车时不宜采用两柱间停一辆车的方式,避免柱子过多;而附建式地库,有时因上部建筑柱网尺寸较小,两柱间可能停放一辆车。
2)除满足合理的技术要求和使用面积指标达到最优,还必须考虑结构上是否经济合理(包括结构跨度尺寸不应过大、材料消耗量要小、结构构件尺寸合理、在平面和高度上不过多占用室内空间、柱距与一定得结构形式相适应、柱网单元不应过多)。
具体停车库柱网与停车关系如下表:


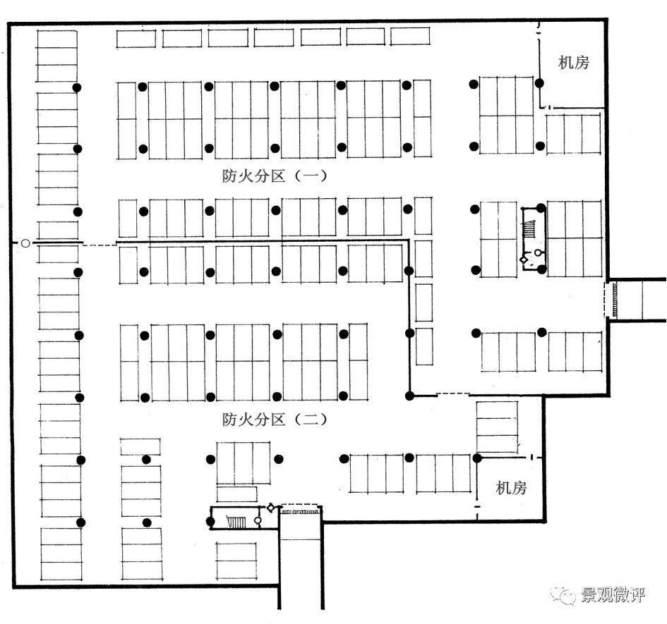
消防设计要求
1、防火分区
防火分区的面积划定如下表所示:
车库类型 | 防火分区面积 |
开敞式半地下汽车库 | 5000 |
开敞式地下汽车库 | 4000 |
半地下汽车库 | 2500 |
地下汽车库 | 2000 |
注:当汽车库设有自动喷淋系统时,其面积可增加一倍。
2、疏散
汽车库的人员安全出口和汽车疏散出口应分开设置。设在工业与民用建筑内的汽车库,其车辆疏散出口应与其他部分的人员安全出口分开设置。
①汽车疏散出口
车道数量:汽车库的汽车疏散出口不应少于两个,但符合下列条件之一的可设一个: A、Ⅳ类汽车库(50辆以下) B、汽车疏散坡道为双车道,且停车数少于100辆的地下汽车库。
车道宽度:汽车疏散坡道的宽度不应小于4m,双车道不应小于7m。
②人员疏散要求
疏散口数量:汽车库的每个防火分区内,其人员安全出口不应少于两个,但符合下列条件之一的可设一个: A、同一时间的人数不超过25人;B、Ⅳ类汽车库
疏散距离:
汽车库室内最远工作地点至楼梯间的距离不应超过45m,当设有自动灭火系统时,其距离不应超过60m。单层或设在建筑物首层的汽车库,室内最远工作地点至室外出口的距离不应超过60m。
汽车库防火分区与相邻防火分区,以防火卷帘分隔,本区内仅有一个人员安全出口,防火墙上未设置可供人员疏散的防火门。

示例
某工程地下大型车库
①汽车库内最远点至楼梯间距离大于60m(两楼梯间距离大于120m)。
②停车位阻挡人员安全出口。


常见地下设备用房
1.风机房的设置
每个防烟分区应有一个进风机房,一个排风机房。条件允许的情况下,同一个防火分区内的两个防烟分区可以共用进风机房。
进排风机房最好呈对角布置,距离大于20米。否则气流短路。
风机房面积约为防烟分区面积的1-1.5%按照经验值30平米左右。
2.水泵房
水泵房的设置大小如下表:

生活水泵房和消防水泵房一般合建,如由于场地原因也可分开设置。当小区分期建设时,则有可能建一个以上的水泵房。分建与合建的基本原则是:当一、二期规划已经确定,泵房合建;当二期建筑性质和高度等都无法确定时,泵房分开建。多层地下室,水泵房及水池宜都设置在地下室的底层。水泵房尽可能避免在住宅下设置(远离塔楼),以减小噪音对住户的影响。水泵房最好靠近配电间,靠近水专业主管井,可以减少管线的长度来减少设备成本。
3.变配电所和发电机房
一般将其设置在地下一层,江苏要求还不能在最低一层,下部必须有其三倍面积的地下室。变配电所供电半径宜在 250 米范围内,且靠近大型用电负荷地方为好。不应设置在厕浴或其它经常积水场所的正下方或贴邻(可设双层板)。不宜设在地势低洼和可能积水场所。若设在地下一层时,应采取抬高地面(100~300mm)等防水措施。若设在住宅地下室时,尽量与住户之间相隔 1—2 层的距离,避免设备运行 低频噪声对住户的影响。变配电所与发电机房应避开建筑物的伸缩缝。
大规模住宅小区一般按地上面积 7 万平米设一个,如无锡魅力之城 C 块,地上 49.1 万平米设有 7 个变电所。江苏新政策为提高供电的可靠性及效率要求约 2.5 万平米设一个,如无锡金域蓝湾地上 30 万平米设有 12 个变电所。
设备用房布置时注意点:
设备挤占车位空间,地下室建造成本高达2000元/M2以上,行车两边是停车布置的黄金宝地,若这里被挤占,那么要想得到相同数量的车位,需用三倍的面积来实现,一般因设备用房挤占停车位、或设备用房过大都会造成成本极大浪费。


总图设计应考虑的因素
1、场地的建筑布局、形式、道路走向、行车密度及行车方向。
2、是否有其他地下设施,如地下街、地铁等。
3、周围环境状况,如绿化、道路宽度、高程、是草地还是山地。
4、工程与水文地质情况,如地下水位、是软土还是硬土,若为岩石则对总图设计影响很大。
5、出入口宜设在宽度大于6 m,纵坡小于10%的次干道上。
6、出入口宜距立交、地下综合体、桥隧等有一定距离,距立交应大于80 m,距其他应大于50 m。
7、要考虑地面出入口一侧有至少2辆车位置的候车长度。
8、停车场应有明显的标志,并按规定设置标线。
9、单建式停车场要考虑车库建成后地面部分的规划,如绿地、广场、公园等内容。
总图设计
1、广场式矩形平面
广场式布局通常是地面环境为广场,周围是道路,即在广场下设地下停车场。
广场下停车场的总平面大多为矩形、近似矩形、梯形等。

2、道路式条形平面
道路式条形平面布局的地下停车场指停车场设置在城市道路下,基本按道路走向布局,出入口设在次要道路一侧,此种平面基本为条形。

图4-17为日本新泻的道路下停车场实例,可存车300台,2层,上层为商场。
3、不规则地段下的不规则平面
大多有特殊原因,主要是地段条件不规则或专业车库的某些原因。这种不规则的地下停车场施工复杂、增加造价、平面不规整。
4、圆形平面
圆形平面的优点是可以建在广场、公园及不规则地段下。通过环形道进出车,由于可建多层,所以存车量很大。
5、附建式与地面建筑平面相吻合平面
附建式停车场利用地下部分或全部空间,由于受地面建筑的平面柱网限制。
其平面主要特点是与地面建筑平面相吻合。
6、利用建筑地下室扩展的混合型平面
此种类型首先利用地面建筑地下室,在此基础上由规模或柱网要求而外扩展的地下车库,此平面类型既有附建部分,又有广场的单建部分,可称为混合型平面。
7、岩层中的通道连接式平面
如果为岩状结构,其平面形式受施工影响将起到很大的变化。在这种地段条件下,地下停车场的平面形式常常由条形通道式拼接起来,可组成“T”型,树状或“井”型平面。

图4-22为我国某省地下专用车库,可存100台中型客货车,有防护能力,战时为人员掩蔽所
地下停车场设计
一、 地下停车场的建筑组成与工艺流程
1、建筑组成
地下停车场建筑组成有以下几个部分:
●出入口:进出车用的坡道、地面口部及口部防护、机械式口部的技术用房;
●停车库:主要有停车间、行车通道、步行道等;
●服务部分:收费、加油、维修、充电等;
●管理部分:门卫、调度、办公、厕所、防灾中心等;
●辅助部分:风机房、水泵房、器材、油库、消防水库、防护用设备间等。
2、工艺流程
地下停车场的一般流程是:车由入口进入、洗车、收费、存车、加油、出库、出口。

二、地下停车场主体平面设计
1、基本要求
●以停放一台车平均需要的建筑面积作为衡量柱网是否合理的综合指标
●适应一定的车型的停放方式、通道布局、并具有一定地灵活性
●保障一定的安全距离,避免遮挡和碰撞
●尽量作到充分利用面积
●施工方便,经济,合理
●尽可能减少柱网尺寸,结构完整统一
2、面积估算
●关于地下车库每台车所需面积指标,是根据国内近年来建造的一些地下汽车库有关资料统计得出的,该指标为参考指标。
表4.7 地下汽车库的面积指标
指标内容 | 小型汽车库 | 中型汽车库 |
每停一台车需要的建筑面积/m2 每停一台车所需的停车部分面积/m2 停车部分面积占总面积比例/% | 35-45 28-38 75-85 | 65-75 55-65 80-90 |
●汽车库建筑规模按汽车类型和容量分为四类,并应符合表4.8中的规定。
表4.8 汽车库建筑分类
规模 | 特大型 | 大型 | 中型 | 小型 |
停车数/量 | 〉500 | 301 ~ 500 | 50 ~300 | 〈50 |
3、车位平面尺寸
●停车场设计取决于选定的基本车型,一般来说,服务车型不可能太多,因为各类车型尺寸相差很大,尺寸的差别会影响到车库建筑面积和空间利用率,所以,必须选定一种基本车型来确定车库的柱网,当然该型号在尺寸和性能上应具有一定的代表性。
●如日本将小轿车分为特大型、大型、中型、小型、轻型5种车型,汽车库主要满足日本大量生产的中型轿车需要,因此确定以日本生产的中型轿车的控制尺寸作为设计车型的外廓尺寸,即:长4.7 m,宽1.7 m,高2.0 m,最小转弯半径6.5 m。

●我国的车库设计也必须根据所存车型来确定参数。一般中小型车(4.80 m×1.80 m×2.00 m)及货车(7.00 m×2.50 m×2.60 m)可作为地下停车场的设计依据。
如果实际存车同上述尺寸存在着差异,则必须按实际车型进行设计。
●不仅如此,仅满足车辆尺寸要求并不能停车,还必须满足车辆周围有一定的安全距离,以保证停车状态下能打开车门和便于车辆进出。
表 4.10 车辆停放时与周围物体的安全距离

单间停放:指一台车周围有墙或车的情况
开敞停放:指一台车周围有柱的情况

4、停放角度与停驶方式
●车辆存放角度是指停车时汽车的轴线与车库纵轴线之间的夹角。一般有0°、30°、60 °、45°、90°等。

●汽车停驶方式是指存车所采用的驾驶措施。
●有前进停放,前进出车;前进停放,后退出车;后退停车,前进出车三种驾驶方式(图4-27)。

研究表明,汽车停放角度与停车占用面积之间有一定的关系
● 0°存车时驾驶方便但所需面积最大,所以该角度适合狭长而跨度小的停车场。
● 90°直角停放时可以从两个方向进出车,所用面积指标最小,但需要较宽的行车通道,适用于大面积多跨的停车间。
5、主体行车通道宽度
行车通道宽度取决于汽车车型、停放角度和停驶方式。
应根据所采取的车型的转弯半径等有关参数,用计算法或几何做图法求出在某种停车方式时所需的行车通道最小宽度,再结合柱网布置,适当调整后确定合理的尺寸,一般不小于3 m。
三、平面柱网
平面柱网由柱距和跨度组成。决定柱距尺寸的因素有如下几个方面:
(1) 停放角度及停驶方式,一个柱距内停放车辆台数;
(2) 车辆停放所必须的安全距离及防火间距;
(3) 通道数及宽度
(4) 结构形式及柱断面尺寸;
(5) 柱距和跨度应符合国家颁布的建筑模数。
实践表明,柱间距、车位及通道跨度三者之间有一定的关系,并影响停车面积。
其主要关系是:
当加大柱距时,柱对出车的阻挡作用开始减小,通道跨度尺寸随之减小,但加大到一定程度后,柱不再成为出车的障碍,这时通道跨度尺寸主要受两侧停车外端点的控制;
当柱距固定,调整车位跨度尺寸时,通道跨度尺寸随之变化,车位跨度尺寸越小,所需行车道宽度越小,超过车后轴位置后,柱子不再成为出车的障碍,如柱子外移,超过车位前端线后,通道跨度尺寸需要加大。


可以看出,经济合理的柱距为5.3 m,车位跨为4.0 m时为最佳尺寸,这时通道跨相应为5.4 m,柱网单元为(4.0+5.4) m×5.3 m。

如按我国小型车和中型车的车型,当地下停车场柱距间停放1台、2台和3台汽车时所需的最小柱距为(3.0 m、3.9 m)、(5.3 m、7.0 m)、(7.6 m、8.5 )
实践表明,目前地下停车场有向大柱距发展的趋势
前述停车均为直角停车的柱网布置。不同停车角度,所需停车面积也有区别,见表4.11所示。
表4.11 不同停车角度所需停车面积
四、结构形式
地下停车场结构形式主要有两种:矩形结构、拱形结构。
1、矩形结构
矩形结构又分为梁板结构、无梁楼盖、幕式楼盖
侧墙通常为钢筋混凝土墙,大多为浅埋,适合地下连续墙、大开挖建筑等施工方法。

2、拱形结构
拱形结构有单跨、多跨、幕式及抛物线拱、顶制拱板等多种类型
其特点是占用空间大、节省材料、受力好、施工开挖土方量大,有些适合深埋,相对来说,不如矩形结构采用的广泛。

五、坡道与通道的设计
坡道设计
1、坡道设计原则
(1) 坡道设计要同出入口和主体有顺畅的连接,同地段环境相吻合,满足车辆进出方便、安全。
(2) 要有一定的坡度,且有防滑要求,对于回转坡道有转弯半径的要求。
(3) 有防护要求的车库,坡道应设在防护区以内,并保证有足够的坚固程度。
(4) 在保证使用要求的前提下应使坡道面积尽量紧凑。
2、坡道类型
坡道类型较多,基本类型有两种:
一种是直线形坡道,另一种是曲线形坡道。
直线形坡道视线好、上下方便、切口规整、施工简便,但占地面积大,常布置在主体建筑以外,图4-36(a)、(b)、(c)所示。
曲线形坡道占地面积小,适用于狭窄地段,视线效果差,进出不太方便,图4-36(d)、(e)

3、坡道与主体交通流线
坡道与主体交通流线顺畅、方便、安全,是存车的重要设计要求,坡道和主体内的交通形成完整的流线。
坡道与主体内交通布置应顺畅,方向单一,流线清楚,出入口明显。
流线在主体内时应同主体平面相吻合。
图4-38为坡道与主体之间的相互关系,

4. 坡道技术标准
(1) 数量:
表 4.12 汽车库容量与坡道面积的关系
表4.12为汽车库容量与坡道面积的关系,由表看出,当容量为10台时,比值占49.7%,而当容量为100台时,比值下降到11.9%,变化值较大。
(2)坡道宽度
小轿车爬坡能力为18°~24°,中型货车为22°~28°。
英、美、法和前苏联各为10%、10%、14%和16%。实际上日本常用12%~15%,德国为10%~15%。根据我国实际情况,地下汽车库坡道纵向坡度建议值为10%~15%,见表4.13。
表 4.13 地下汽车库坡道纵向坡度
(3)坡道长度、宽度、高度
坡道长度取决于坡度(图4-39),计算面积可按水平投影乘以cosα。

表4.14为坡道升降高度3.5~7.0 m,坡度为10%~15%条件下的直线坡道各段长度。表4.16为不同长度、宽度、坡度的直线坡道使用面积比较值。


坡道横向也应设坡度,以便于排水,该坡度值为:直线段1%~2%,曲线段为2%~6%
曲线段坡度是横向超高,也可用公式(4-5)计算,即公式中:
ic——横向坡度;
v——设计车速(km/h);
R——弯道平曲线半径(m);
μ—横向力系数(0.1~0.15)
如果利用式(4-5)计算停车场曲线道路最大超高值可见表4-18所示。
表 4.18 圆曲线半径
在曲线段,汽车行驶道路的宽度要比直线段大,因此,曲线段必须加宽。
按公路建设标准规定,当曲线半径等于或小于250 m时,应在曲线的内侧加宽,且加宽值不变,地下停车场通道设计应按城市道路曲线加宽取值。
加宽值由直线段开始,逐渐按比例增加到圆曲线起点的全加宽值,在圆曲线加宽值不变。
5、通道设计
汽车通道设计主要考虑汽车回转轨迹,平曲线及缓和曲线,横向超高和加宽。
回转轨迹表明当汽车回转状态下的环道内外半径不同,则最小道宽尺寸也将不同。
平曲线是指通道中非直线段的曲线段部分。在直线与曲线段相接处为缓和曲线,由于地下停车场汽车进入时行驶速度较低(小于40 km/h),缓和曲线可用直线代替,直线缓和段一端与圆曲线相切,另一端与直线相接处予以圆顺,不设缓和曲线的临界半径R=0.144v2,v为汽车行驶速度。
更多相关信息 还可关注中铁城际公众号矩阵 扫一扫下方二维码即可关注

文章推荐
- 如何把高标准农田建设与智慧农业设施统筹设计,避免二次开挖?
- 如何通过整治引导农业向绿色、有机、品牌化转型,提高附加值?
- 如何结合整治塑造特色景观,发展农文旅融合的沉浸式体验项目?
- 同一个项目能否同时申请超长期特别国债、中央预算资金、专项债?
- 2026年7万亿资金申报全攻略:超长期特别国债+中央预算内投资+专项债重点投向与实操解析
- 2026年地方专项债新政解读:4.8万亿额度怎么花?重点投向、申报攻略全解析
- 湖北省黄冈市2025年全域土地综合整治完成19个项目市级评审,总规模83.8万亩、总投资超97亿元
- 安徽省阜阳市推进实施全域土地综合整治项目谋划、申报工作
- 福建省南平市首个省级全域土地综合整治项目获批
- 现代化首都都市圈空间协同规划(2023—2035年)




